Xây nhà trọn gói
Dịch vụ xây nhà trọn gói uy tín, chất lượng hàng đầu tại Công Ty Xây Dựng TLT.COM giá chỉ từ 4.200.000đ/m2. Chúng tôi chuyên xây nhà trọn gói khu vực TPHCM, Đồng Nai, Bình Dương và các khu vực lân cận, báo giá nhanh, chính xác, khảo sát tận nơi, không bán thầu, không phát sinh chi phí, sử dụng vật tư chất lượng, đội ngũ kiến trúc- kỹ sư và đội ngũ thợ giàu kinh nghiệm, chuyên môn cao. Liên hệ: 0976272186
Báo giá xây nhà trọn gói TpHCM [MỚI] 2026 Bao thiết kế
Xây dựng TLT chân thành cảm ơn Quý Khách Hàng đã tin tưởng và lựa chọn dịch vụ xây dựng của TLT trong suốt thời gian qua. Sự đồng hành và tín nhiệm của Quý khách hàng chính là động lực để TLT không ngừng đổi mới, nâng cao chất lượng và hoàn thiện hơn nữa.
Mỗi công trình do TLT thi công không đơn thuần là những khối bê tông, cốt thép đó còn là tâm huyết, sự cam kết về chất lượng và trách nhiệm đối với toàn bộ Quý khách hàng. Chúng tôi hiểu rõ, công việc này không được phép xẩy ra sai sót.
Chính vì thế, xây dựng TLT luôn đặt chữ TÂM và TÍN lên hàng đầu trong mọi giai đoạn từ, tư vấn, lên phương án, thiết kế đến thi công và bàn giao. Với phương châm “Chắc nền móng – Bền công trình – Vững niềm tin”.
TLT cam kết mang đến giải pháp xây nhà trọn gói TPHCM và các tỉnh thành, chuẩn kỹ thuật, minh bạch chi phí, sử dụng vật tư chính hãng, thi công đúng tiến độ, đảm bảo chất lượng công trình lâu dài, giúp khách hàng an tâm khi nhận nhà mà không lo phát sinh thêm chi phí.

Báo giá xây nhà trọn gói chìa khóa trao tay tại TPHCM. Xây dựng một ngôi nhà không phải là việc đơn giản nó đòi hỏi sự chuẩn bị kỹ lưỡng và có kế hoạch chi tiết để đảm bảo mọi công việc được thực hiện một cách chính xác và hiệu quả. Đó chính là lý do tại sao dịch vụ xây nhà trọn gói tại TPHCM đã trở thành một sự lựa chọn phổ biến cho quý vị khi xây dựng ngôi nhà của mình.
Trong bài viết này, chúng ta sẽ tìm hiểu về giá xây nhà trọn gói TPHCM, bí quyết để chọn nhà thầu xây dựng đáng tin cậy hay những quy định xây nhà tại TPHCM và nhiều hơn nữa. Hoặc quý vị liên hệ trực tiếp với công ty xây dựng TLT để nhận hỗ trợ tư vấn phướng án, thiết kế, báo giá chi tiết theo yêu cầu Miễn Phí 24/7.
Khái niệm xây nhà trọn gói TPHCM – Giá xây nhà trọn gói TPHCM hiện nay là bao nhiêu?
Khái niệm xây nhà trọn gói “chìa khóa trao tay” TPHCM là hình thức chủ đầu tư giao toàn bộ quá trình xây dựng cho một nhà thầu đứng ra đảm nhận tất cả các hạng mục từ thiết kế, xin giấy phép, đo đạc, san lấp mặt bằng, thi công phần thô, hoàn thiện đến hoàn công xây dựng.
Chủ đầu tư chỉ cần cung cấp nhu cầu của mình về ngôi nhà, cũng như chi phí dự kiến và giấy tờ pháp lý. Sau khi công ty xây dựng đã thi công hoàn thiện chủ đầu tư sẽ tiến hành nghiệm thu và nhận nhà.
- Xây nhà trọn gói là một dịch vụ toàn diện để xây dựng ngôi của mình từ đầu đến cuối bao gồm các hạng mục tham khảo sau.
- Thiết kế kiến trúc: Cần có một bản thiết kế kiến trúc, kết cấu độc đáo, hài hòa, tối ưu hóa không gian ánh sáng và gió tự nhiên, phù hợp với yêu cầu của gia đình.
- Xây nhà phần thô: Là phần xây dựng khung sườn nhà, gồm móng, hầm bể, cầu thang, cột, dầm đà, ngăn phòng,…
- Phần hoàn thiện: Gồm những công đoạn như, cán và láng nền, ốp lát gạch, sơn bả tường, gắn các thiết bị kỹ thuật điện, cấp thoát nước, nội thất,…

Giá xây nhà trọn gói tại TPHCM hiện nay là bao nhiêu?
Giá xây nhà TPHCM dao động từ 4.800.000VNĐ/m² đến 7.500.000VNĐ/m², tùy thuộc vào phân khúc xây dựng (trung bình, khá, tốt đến vật liệu và loại công trình cụ thể). Bên dưới là bảng giá xây nhà trọn gói TPHCM mới nhất năm 2026 của xây dựng TLT cùng những vấn đề cần lưu ý khi xây nhà mời quý khách cùng tham khảo chi tiết.
- Giá xây nhà trọn gói TPHCM, (gói trung bình) từ 4.850.000VNĐ/m2 đến 5.300.000VNĐ/m2, đối với gói này sẽ áp dụng với các thiết kế đơn giản ít chi tiết, sử dụng loai vật tư phổ, đáp ứng nhu cầu về chi phí xây nhà hạn chế.
- Giá xây nhà trọn gói chìa khóa trao tay TPHCM, (gói khá) từ 5.300.000VNĐ/m2 đến 6.200.000VNĐ/m2, đối với gói khá sẽ nằm ở phân khúc giữa dễ dàng đáp ứng tối đa nhu cầu xây dựng theo mọi phong cách thiết kế, diện tích, thiết bị, vật tư loại tốt và thiết bị hiện đại.
- Giá xây nhà trọn gói tại TPHCM chìa khóa trao tay (gói cao cấp): từ 6.300.000VNĐ/m2 trở lên, gói xây dựng này thường phù hợp với các loại hình nhà biệt thự hoặc nhà phố cổ điển, sử dụng thiết bị, vật tư cao cấp, như đá hoặc gỗ tự nhiên.
Quý khách có thể liên hệ trực tiếp với xây dựng TLT theo hotline (0917341516) để nhận hỗ trợ tư vấn phướng án, thủ tục pháp lý, thiết kế, báo giá xây nhà chi tiết theo yêu cầu Miễn Phí.

Yếu tố ảnh hưởng giá xây nhà trọn gói TPHCM “Chìa khóa trao tay”
Trước xu hướng gia tăng nhu cầu xây dựng nhà ở tại TP.HCM, dịch vụ xây nhà trọn gói đã trở thành lựa chọn tối ưu được nhiều khách hàng ưu tiên. Tuy nhiên, giá xây nhà trọn gói là mối quan tâm của nhiều khách hàng, bởi chi phí có thể dao động tùy thuộc vào nhiều yếu tố khác nhau như diện tích, vật tư, vị trí xây dựng, thiết kế và yêu cầu riêng của từng khách hàng cho ngôi nhà của mình.
- Diện tích xây dựng và khối lượng công trình xây dựng: Diện tích càng lớn thì đơn giá có thể được điều chỉnh thấp hơn do tận dụng được nguồn lực và vật tư. Nhà nhiều tầng, có tầng hầm hoặc mái phức tạp sẽ làm tăng tổng chi phí xây dựng.
- Gói vật tư sử dụng: Gói phổ thông: Sử dụng vật liệu tiêu chuẩn, phù hợp với ngân sách hạn chế. Gói khá: Chất lượng vật tư cao hơn, thẩm mỹ tốt hơn. Gói cao cấp: Dành cho công trình đòi hỏi tính sang trọng, bền vững và độ hoàn thiện cao.
- Vị trí và điều kiện thi công: Dự án xây dựng tọa lạc tại trung tâm thành phố Hồ Chí Minh, ngõ hẻm nhỏ, hoặc khó vận chuyển vật tư sẽ tốn chi phí hơn. Điều kiện nền đất yếu có thể làm phát sinh thêm chi phí giá cố phần móng (cọc ép, móng băng…).
- Thiết kế và yêu cầu kiến trúc: Nhà có kiến trúc đơn giản sẽ thấp hơn so với thiết kế phức tạp, có nhiều chi tiết trang trí, phào chỉ, vách ngăn, giếng trời, hệ lam, mái nghiêng,… Các yêu cầu riêng như cách âm, chống nóng, nhà thông minh, hồ bơi,… cũng khiến chi phí tăng lên.
- Loại hình nhà ở xây dựng: Các dạng công trình dân dụng đến thương mại như nhà cấp 4, nhà phố, biệt thự và công trình dịch vụ như nhà nghỉ, khách sạn,… sẽ có mức độ đầu tư và đơn giá khác nhau.
- Nhà thầu thi công xây dựng: Nhà thầu thi công uy tín, chuyên nghiệp thường báo giá minh bạch, không phát sinh chi phí ngoài hợp đồng. nhưng chi phí tổng ban đầu sẽ cao hơn. Một số đơn vị có chính sách ưu đãi như: miễn phí thiết kế, miễn phí xin phép xây dựng, hỗ trợ thanh tra,…

+ Xem thêm: báo giá xây nhà trọn gói Bình Dương

Bảng báo giá xây dựng nhà trọn gói tại TPHCM đầy đủ chi tiết nguyên vật liệu
Báo giá xây nhà trọn gói tại TPHCM với đầy đủ chi tiết cần biết về việc xây dựng một ngôi nhà. Đơn giá xây nhà trọn gói TPHCM của công ty Xây Dựng TLT có mức giá từ: 4.850.000 VNĐ – 7.500.000 VNĐ/m2 cho từng gói xây dựng từ trung bình, khá, tốt.



Bên trên là bảng đơn giá xây nhà trọn gói và vật tư thiết bị hoàn thiện
Lưu ý:
“Bảng giá trên có thể thay đổi tùy diện tích, vật tư và điều kiện thi công. Giá xây nhà đã bao gồm thiết kế, xin phép xây dựng và thi công trọn gói từ móng đến hoàn thiện, chưa bao gồm VAT”.
Giá xây nhà trọn gói TPHCM từ cấp 4 – Nhà phố – Biệt thự – Căn hộ dịch vụ
Báo giá xây nhà cấp 4 trọn gói tại TPHCM – Giá xây nhà vườn trọn gói TPHCM
Một ngôi nhà cấp 4 thường có thiết kế đơn giản hơn so với các loại nhà khác. Nhà cấp 4 được thiết kế với một phòng khách, hai hoặc ba phòng ngủ và một phòng sinh hoạt chung.
Giá xây nhà trọn gói TPHCM cấp 4 dao động 4.800.000 VNĐ/m2 đến 5.800.000 VND/m2 tùy theo diện tích, thiết bị và loại hình nhà.

Báo giá xây nhà phố trọn gói tại TPHCM – Giá xây nhà cao tầng tại HCM
Nhà phố hay còn gọi là nhà ống nó được thiết kế với nhiều mức độ phức tạp khác nhau như (nhà tân cổ điển, nhà mái thái, nhà hiện đại,…) Tuy nhiên, cấu trúc chung của nhà phố bao gồm một phòng khách, nhiều phòng ngủ và các phòng chức năng khác như phòng ăn, phòng sinh hoạt chung và phòng làm việc, với số lượng nhiều tầng.
- Đơn giá xây nhà trọn gói tại TPHCM nhà phố dao động từ 4.900.000 VND/m2 đến 6.500.000 VND/m2.

Báo giá xây biệt thự trọn gói TPHCM – Giá xây dựng VILLA tại TPHCM sang trọng
Thông thường nhà biệt thự sẽ có cấu trúc phức tạp hơn so với các loại nhà ở khác. Biệt thự thường được thiết kế với nhiều phòng ngủ, phòng khách, phòng ăn rộng, và có cảnh quan sân vườn, hồ bơi,….
- Đơn giá xây biệt thự trọn gói tại TPHCM dao động từ 5.400.000 VNĐ/m2 đến 7.500.000 VNĐ/m2 xây dựng từ nhà hiện đại đến cổ điển.
Bên trên là thông tin về đơn giá xây dựng nhà trọn gói tại TPHCM. Quý khách hãy liên hệ trực tiếp với chúng tôi theo số điện thoại 0917341516 để nhân viên tư vấn báo giá xây nhà trọn gói chi tiết bóc tách theo từng hạng mục miễn phí.

Đơn giá xây dựng tầng hầm tại TPHCM nhà phố – Biệt thự
Tại TPHCM hiện nay đã cho phép nhà ở riêng lẻ được xây dựng tầm hầm hoặc tầng bán hầm theo thông tư mới của Bộ xây dựng.
- Đối với giá xây tầng hầm, tầng bán hầm tại TPHCM có dao động tùy thuộc vào độ sâu và số lượng tầng hầm xây dựng.
- Giá xây biệt thự có tầng hầm, tầng bán hầm tại HCM dao động từ: 3.500.000 VNĐ/m2 đến 7.000.000 VNĐ/m2 xây dựng.
- Giá xây tâng hầm, tầng bán hầm nhà phố ở HCM từ: 3.400.000 VNĐ/m2 đến 6.200.000 VNĐ/m2 xây dựng.
Lưu ý: Đơn giá xây tầng hầm và tầng bán hầm trên không áp dụng cho loại hình nhà thương mại. Vì vậy, quý khách hãy liên hệ cho chúng tôi để nhận hỗ trợ chi tiết.

Giá xây nhà nghỉ tại TPHCM và Đơn giá xây dựng khách sạn tại HCM
“Đối với loại nhà theo hình thức kinh doanh như khách sạn, nhà nghỉ, homestay, resort thì đơn giá sẽ có sự chênh lệch cao, cùng với đó là phạm vi thi công hay mặt bằng xây dựng”. Vì vậy, quý khách hãy liên hệ với TLT để nhận tư vấn Miễn Phí và chi tiết.
- Đơn giá xây dựng loại hình nhà kinh doanh được TLT chia thành các gói sau.
- Đơn giá xây dựng nhà nghỉ phần thô tại TPHCM có dao động từ: 3.300.000VNĐ/m2 – 3.600.000VNĐ/m2 xây dựng sàn.
- Đơn giá xây nhà trọn gói TPHCM có dao động từ: 4.800.000 VNĐ/m2 – 5.900.000 VNĐ/m2 xây dựng sàn.
- Đơn giá xây dựng khách sạn phần thô HCM có dao động từ: 3.300.000 VNĐ/m2 – 3.700.000 VNĐ/m2 xây dựng sàn.
- Đơn giá xây khách sạn trọn gói ở HCM có dao động từ: 4.800.000 VNĐ/m2 – 6.300.000 VNĐ/m2 xây dựng sàn.
- Đơn giá xây dựng homestay phần thô tại TPHCM từ: 3.300.000 VNĐ/m2 – 3.600.000 VNĐ/m2 xây dựng sàn.
- Đơn giá xây homestay trọn gói TPHCM từ: 4.850.000 VNĐ/m2 – 6.500.000 VNĐ/m2 xây dựng sàn.
- Đơn giá xây resort trọn gói TPHCM từ: 4.900.000 VNĐ/m2 – 6.900.000 VNĐ/m2 xây dựng sàn.
- Đơn giá xây dựng resort phần thô HCM từ: 3.300.000 VNĐ/m2 – 3.800.000 VNĐ/m2 xây dựng sàn.
Chú ý: Đơn giá trên đã được bao gồm bảng vẽ thiết kế và giấy phép xây dựng, nhưng chưa bao gồm cảnh quan. Đối với diện tích xây dựng nhà lớn hoặc cao cấp xin liên hệ trực tiếp để được hỗ trợ tư vấn và cung cấp đơn giá chi tiết theo thực tế.

Đơn giá xây căn hộ dịch vụ trọn gói TPHCM (Nhà trọ) cam kết chất lượng
- Đơn giá xây căn hộ dịch vụ trọn gói tại TPHCM (nhà trọ) dao động từ: 4.700.000 VNĐ/m2 – 5.500.000 VNĐ/m2 xây dựng. Đơn giá trên được tư vấp và áp dụng theo mục đích và công năng sử dụng.
- Đơn giá xây căn hộ dịch vụ, nhà trọ phần thô TPHCM từ: 2.900.000 VNĐ/m2 – 3.500.000 VNĐ/m2 xây dựng theo từng nhu cầu của khách hàng.

Giá xây nhà phần thô tại TPHCM và nhân công hoàn thiện
Phần thô là một trong những công đoạn quan trọng của ngôi nhà, đây là phần chịu lực “kết cấu” Móng, cột, dầm, sàn, cầu thang, lanh tô,… là thành phần chịu lực chủ yếu. Nếu để sai sót ở công đoạn này sẽ có thể gây nứt, lún, giảm độ bền của cả căn nhà.
Giá xây nhà phần thô nhân công hoàn thiện còn tùy thuộc vào quy mô, loại hình nhà (nhà phố, biệt thự, nhà cấp 4, trong hẻm, mặt tiền,…), mức giá xây dựng phần thô tại TP.HCM bao gồm (vật tư + nhân công phần thô) dao động từ 3.200.000 VNĐ/m2 đến 4.000.000 VNĐ/m2 xây dựng.

Cách tính diện tích và dự trù chi phí xây nhà trọn gói TPHCM theo m2
Sau khi tính được tổng diện tích xây dựng nhà, quý khách chỉ cần nhân với đơn giá theo gói vật tư là có thể ước lượng tổng chi phí cần đầu tư.
Tổng chi phí xây nhà trọn gói = Tổng diện tích xây dựng (m²) × Đơn giá xây dựng theo từng gói vật tư.
Hiện nay, có 3 loại móng được sử dụng nhiều trong xây dựng nhà ở, bao gồm: Móng đơn, móng băng, móng cọc.
- Diện tích móng đơn được tính bằng: 30 -> 40% diện tích trệt.
- Diện tích móng băng được tính bằng: 55 -> 70% diện tích trệt.
- Diện tích móng cọc được tính bằng: 40 -> 50% diện tích trệt.
- Diện tích các tầng được tính bằng 100% diện tích.
- Diện tích mái bê tông cốt thép từ 35->40% diện tích trệt.

Dự toán chi phí xây nhà phố tại TPHCM
Ví dụ: Tính kinh phí xây dựng nhà phố 4 tầng, diện tích sàn 5×15, móng cọc, mái bê tông cốt thép, đơn giá xây nhà trọn gói là 5.200.000 VNĐ/m2.
- Phần móng nhà tính theo móng cọc: 75m2*45% = 33.75m2
- Phần sàn 4 tầng: 75*4*100% = 300m2
- Phần mái bê tông cốt thép: 75*35% = 26.25m2
==>>Tổng diện tích và chi phí xây dựng cho căn nhà trên: 360m2*5.2 Triệu = 1 Tỷ 872 Triệu (cho gói xây dựng khá).
==>> Tổng diện tích và chi phí xây nhà phần thô căn nhà phố trên là: 360m2 *3.5 Triệu = 1 Tỷ 260 Triệu.

Xây nhà trọn gói tại TPHCM bao gồm những hạng mục nào?
“Giá xây nhà trọn gói tại TP.HCM thường được tính theo tổng diện tích xây dựng (m²) x đơn giá theo từng phong cách thiết kế và gói vật tư xây dựng”. Bao gồm toàn bộ các hạng mục công việc từ giai đoạn chuẩn bị cho đến khi bàn giao và hoàn công công trình.
Các công việc xây dựng cơ bản như móng nhà, kết cấu, trang trí nội thất, lắp đặt toàn bộ cửa của ngôi nhà, cầu thang, lan can ban công, hệ thống điện, nước, thoát nước. Dưới đây là các hạng mục cơ bản sẽ được đính kèm trong bảng báo giá xây nhà trọn gói tại TP.HCM.
Ngoài ra, Xây Dựng TLT cũng cung cấp giá xây nhà trọn gói cho các công việc nâng cao và tùy chỉnh như sân vườn, hồ bơi, garage, hệ thống an ninh, điều hòa không khí,…

Hạng mục chuẩn bị trước thi công
- Tiếp nhận yêu cầu, khảo sát thực tế, tư vấn phương án thiết kế.
- Lập hồ sơ thiết kế sơ bộ + hồ sơ xin giấy phép xây dựng (được miễn phí khi ký hợp đồng).
- Chuẩn bị mặt bằng, dựng lán trại, bố trí kho bãi, điện nước tạm.
- Lập hồ sơ kỹ thuật thi công.
Giai đoạn xây dựng phần khung kết cấu (Phần thô)
- Đào móng, thi công móng (móng đơn, móng băng, móng cọc tuỳ công trình).
- Thi công cốt thép, cốp pha, đổ bê tông móng, sàn, cột, dầm các tầng.
- Xây tường, ngăn phòng, tô trát hoàn thiện.
- Thi công âm tường hệ thống điện và cấp thoát nước.
Thi công hoàn thiện
- Ốp lát gạch nền, tường WC, nhà bếp, sân thượng,…
- Thi công lắp đặt trần thạch cao cùng các chi tiết trang trí
- Triển khai lắp đặt toàn bộ đèn chiếu sáng, công tắc và ổ cắm trong nhà.
- Lắp đặt thiết bị vệ sinh: lavabo, bồn cầu, vòi sen, vòi rửa,…
- Trang trí mặt tiền theo từng phong cách thiết kế từ hiện đại đến cổ điển.
- Sơn nước trong và ngoài nhà.
- Thi công chống thấm khu vực sàn mái, WC, ban công.
- Khung bảo vệ, cửa cổng, hàng rào, sân vườn (tuỳ yêu cầu).
- Hoàn thiện lắp đặt cửa chính, cửa sổ, lan can và hệ thống cầu thang.
- Lắp đặt hệ thống truyền hình, internet âm tường.
- Bếp, tủ bếp, mặt đá bếp.
- Cầu thang (ốp đá, tay vịn, trụ, lan can).
- Gạch trang trí, đèn trang trí, thiết bị điện cao cấp (nếu chọn gói cao cấp).
- Dọn dẹp sạch sẽ và Vệ sinh toàn công trình sau khi hoàn thiện.
- Các hạng mục kèm theo (nếu có) như sân vườn, cổng, hồ bơi,…
Không bao gồm trong giá trọn gói (sẽ có thỏa thuận riêng)
- Hệ thống điện 3 pha.
- Điều hòa âm trần, đèn chùm trang trí, tiểu cảnh, hồ cá…
- Hệ thống smarthome, năng lượng mặt trời, chống sét chuyên dụng.
- Phí hoàn công, lệ phí cấp sổ, công chứng (nếu có).
- Lưu ý:
- Giá xây nhà phổ thông: thường Sử dụng vật liệu và thiết bị cơ bản, phù hợp với nhà cấp 4 hoặc nhà phố đơn giản.
- Giá xây nhà khá: dùng Vật tư và thiết bị tốt, phù hợp với nhà phố, nhà vườn, biệt thự hiện đại, biệt thự phố.
- Giá xây nhà tốt: dùng Vật tư cao cấp, thiết kế tỉ mỉ, phù hợp biệt thự tân cổ điển, cổ điển hoặc nhà phố sang trọng.

Vì sao dịch vụ xây nhà trọn gói TPHCM lại được ưu chuộng? Ưu nhược điển của xây nhà trọn gói
Thành phố Hồ Chí Minh là thành phố đông dân, mật độ xây dựng cao và pháp lý xây dựng khá phức tạp. Việc xây dựng một ngôi nhà tại đây không chỉ tốn thời gian mà còn đòi hỏi nắm rõ về quy trình thi công, thủ tục hành chính và kiểm soát chi phí. Vì vậy, lựa chọn xây nhà trọn gói tại TP.HCM là giải pháp tối ưu đến khách hàng.
- Thay vì phải tự mình lo liệu từng hạng mục, thì giờ đây chủ đầu tư chỉ cần đưa ra nhu cầu và chi phí dự kiến, mọi thứ còn lại sẽ được công ty cung cấp dịch vụ thực hiện trọn vẹn từ chi tiết và khách hàng chỉ việc nhận chìa khóa.
- Đặc biệt tại TP.HCM, thầu xây nhà trọn gói TLT đã có quy trình làm việc bài bản, hệ thống nhà cung cấp vật tư ổn định và đội ngũ giám sát có kinh nghiệm lâu năm. Điều này giúp rút ngắn tiến độ, kiểm soát chất lượng, đồng thời giảm thiểu rủi ro phát sinh trong suốt quá trình xây dựng.
Ưu điểm xây nhà trọn gói tại HCM
- Tiết kiệm thời gian và công sức mọi thứ được lên kế hoạch và quản lý đồng bộ bởi nhà thầu.
- Kiểm soát chi phí hiệu quả ngay từ đầu, quý khách sẽ biết rõ tổng chi phí cần chi, hạn chế tối đa phát sinh nhờ có cam kết trong hợp đồng.
- Đảm bảo tiến độ thi công khi đã có các điều khoản ràng buộc nếu bàn giao trễ.
- Chất lượng công trình được giám sát chặt chẽ bởi sự đông nhất từ kỹ sư, kiến trúc sư và thợ, như vậy sẽ đảm bảo công trình thi công đúng kỹ thuật, thẩm mỹ và an toàn.
- Hồ sơ pháp lý và mọi thủ tục như giấy phép, bản vẽ, hồ sơ hoàn công,… đều được nhà thầu hỗ trợ thực hiện đầy đủ.
- Bảo hành công trình đối với phần kết cấu, hoàn thiện, từ đó khách hàng có thể yên tâm về chất lượng công trình.
Nhược điểm xây nhà chìa khóa trao tay tại TPHCM
Dịch vụ nào cũng có điển tốt và điển chưa tốt dưới đây là một số điểm cần lưu ý của dịch vụ này.
- Quý khách cần lựa chọn đúng nhà thầu uy tín, nếu không nghiên cứu kỹ, chọn phải đơn vị thiếu kinh nghiệm hoặc gian dối, quý khách có thể gặp tình trạng thi công kém chất lượng, vật liệu không đúng cam kết, báo giá không đầy đủ hạng mục thi công.
- Thiếu linh hoạt nếu không thống nhất rõ ràng từ đầu về vật tư, thiết kế, phong cách, nhà thầu có thể thi công theo cách họ thấy “phù hợp” nhưng không đúng mong muốn của quý khách.
- Mặc dù trọn gói có thể giúp kiểm soát chi phí, nhưng nếu quý khách liên tục thay đổi vật liệu, thiết kế trong quá trình thi công thì giá trị hợp đồng sẽ bị điều chỉnh tăng theo.

Cập nhật quy định và thủ tục cần thiết khi xây nhà tại TPHCM – Vì sao giá xây nhà TPHCM trong hẻm nhỏ lại cao hơn hẻm lớn
Khi xây nhà tại TP.HCM, chủ đầu tư cần nắm bắt rõ các quy định liên quan đến chiều cao tối đa, chỉ giới xây dựng (lộ giới), khả năng xây ban công, tầng hầm và hoàn công công trình. Những yếu tố này ảnh hưởng trực tiếp đến khả năng xin phép xây dựng, bố trí công năng và cả chi phí xây dựng. Dưới đây là tổng hợp những điểm quan trọng theo quy định và thực tế áp dụng tại TPHCM:
Những quy định cần biết khi xây nhà tại TP.HCM
Những quy định mới cần biết khi xây dựng nhà tại TPHCM như chiều cao, chỉ giới (lộ giới), ban công, tầng hầm, hoàn công,… Và vì sao xây nhà trong hẻm nhỏ lại có đơn giá cao hơn?
Lộ giới và chỉ giới đường đỏ xây dựng nhà tại TPHCM
Lộ giới là phần đất đã được quy hoạch để mở rộng hạ tầng như đường giao thông, vỉa hè hoặc công trình công cộng. Chỉ giới xây dựng là ranh giới được phép xây dựng công trình trên phần đất còn lại của mình, tính từ tim đường hoặc mép hẻm vào.
- Khoảng lùi xây dựng tùy thuộc vào lộ giới:
- Đường <12m: được xây sát chỉ giới đường đỏ.
- Đường từ 12–20m: lùi 3m.
- Đường >20m: lùi 6m.
- Không được làm ban công, mái che nhô ra trong phạm vi lộ giới.
- Nếu vị trí đất nằm trong khu vực có quy hoạch lộ giới, quý khách bắt buộc phải chừa phần đất này, không được xây dựng, kể cả làm mái che hay ban công.
Ví dụ thực tế:
- Nếu hẻm có lộ giới 4m nhưng thực tế hiện tại mới mở được 3m, quý khách vẫn phải xây lùi theo mốc 4m, không được xây dựng phần 1m dự phòng đó.
Chiều cao tối đa khi xây nhà tại TPHCM
Chiều cao xây dựng cho phép tùy thuộc vào quy hoạch khu vực và chiều rộng của đường, một số nguyên tắc chung:
- Hẻm nhỏ dưới 3,5m: thường chỉ được phép xây từ 1 trệt 2 lầu + sân thượng (tùy vị trí cụ thể).
- Hẻm từ 4m trở lên: có thể xây từ 3–4 tầng tùy theo diện tích lô đất, mật độ xây dựng cho phép, và khoảng lùi mặt tiền.
- Đường 12–20m: tối đa 5 tầng.
- Đường >20m: có thể xây cao hơn, nhưng cần tuân theo quy hoạch cụ thể.
- Phải đảm bảo chiều cao tầng trệt ≥ 3,6m, các tầng còn lại ≥ 3,3m để đáp ứng tiêu chuẩn thông thoáng
- Nếu nhà nằm gần đầu hẻm tiếp giáp đường lớn, có thể được xét linh hoạt theo chiều cao trung bình của dãy nhà xung quanh.
Để biết chính xác chiều cao xây dựng nhà của mình quý khách hãy liên hệ với công ty xây dựng để kiểm tra bản đồ quy hoạch phân khu và lộ giới của tuyến đường mà công trình tọa lạc.
Quy định ban công và phần nhô ra khi xây nhà tại HCM
Không phải công trình nào cũng được phép xây ban công. Việc cho phép hay không phụ thuộc vào các yếu tố:
- Chiều rộng hẻm:
- Hẻm < 6m: thường không được phép làm ban công nhô ra ngoài lộ giới.
- Hẻm ≥ 6m: có thể làm ban công, nhưng phải đảm bảo khoảng cách an toàn và chiều cao từ mặt đất (thường tối thiểu 3,5m).
- Kích thước ban công:
- Ban công không được vượt quá 1,4m so với chỉ giới xây dựng, tính từ tầng 2 trở lên.
- Không được có mái che cứng vượt giới hạn cho phép.
- Không ảnh hưởng đến dây điện, giao thông hoặc an toàn cháy nổ.
Quy định xây tầng hầm tại TPHCM với nhà ở riêng lẻ
Tầng hầm được phép xây nếu đảm bảo:
- Không ảnh hưởng công trình lân cận (phải có biện pháp thi công an toàn).
- Không nhô quá chỉ giới xây dựng (trừ ram dốc).
- Ram dốc tầng hầm phải có độ dốc ≤ 20%, không ảnh hưởng lối đi chung hoặc đường giao thông.
- Cần xin phép rõ ràng và thiết kế phù hợp nếu có ý định làm tầng hầm để xe.
Ví dụ thực tế:
- Hẻm dưới 3m: rất khó được cấp phép làm tầng hầm, do ảnh hưởng giao thông và an toàn thi công.
- Đường >4m: thường có thể được xem xét cấp phép nếu đáp ứng các điều kiện kỹ thuật.
- Đường lớn >6m – 12m trở lên: gần như không gặp trở ngại nếu thiết kế hợp lý.
Quy định hoàn công nhà nhà TPHCM
Để hoàn công (công nhận nhà đã xây đúng phép), công trình cần đáp ứng các điều kiện:
- Xây dựng đúng vị trí, chiều cao, mật độ, kiến trúc như trong giấy phép.
- Không xây lấn vào phần lộ giới hoặc khu đất quy hoạch dự phòng.
- Không thay đổi công năng tầng (ví dụ: xin phép làm sân thượng nhưng thi công thành phòng ở).
- Có bản vẽ hoàn công do đơn vị có tư cách pháp nhân thực hiện.
Đặc biệt lưu ý:
Đối với nhà xây trong hẻm nhỏ, cơ quan quản lý đô thị thường kiểm tra kỹ việc có lấn hẻm không, nên mọi phần đua ra như (mái che, cầu thang ngoài, hộp kỹ thuật…) cần được tính toán chặt chẽ ngay từ thiết kế.
Vì sao đơn giá xây nhà tại TPHCM trong hẻm nhỏ lại cao hơn so với hẻm lớn?
Nhiều khách hàng thắc mắc “tại sao cùng diện tích nhưng khi xây nhà trong hẻm nhỏ lại có chi phí cao hơn?”
- Giao thông hạn chế, tăng chi phí vận chuyển vật tư.
- Phải dùng xe nhỏ, xe rùa, hoặc thuê người khuân vác thủ công. Không thể tập kết vật tư số lượng lớn mất thời gian và chi phí vận chuyển gấp nhiều lần.
- Có những hẻm nhỏ phải thuê người khuân vác từ đầu hẻm vào từng bao xi măng, từng viên gạch,… do đó đơn giá sẽ cao hơn những vị trí xây dựng có đường trên 4.5m.
- Không gian thi công chật, giảm hiệu quả thi công và gặp khó khăn khi thi công tầng trên do không có không gian dựng cẩu hoặc vận chuyển vật tư theo trục đứng.
- Tăng chi phí nhân công và quản lý do phải vận chuyển thủ công, thao tác chậm hạn chế di chuyển vì vậy kéo dài thời gian thi công
- Như vậy khi xây nhà trong hẻm nhỏ sẽ bị ảnh hưởng bởi điều kiện thi công khó khăn hơn, cần nhiều nhân lực hơn, thời gian dài hơn, dẫn đến đơn giá thi công cao hơn từ 15% so với hẻm lớn. Do đó, khi lập dự toán hoặc so sánh báo giá giữa các công trình, quý khách cần xem xét kỹ vị trí hẻm, khả năng tiếp cận công trình, và phạm vi tổ chức thi công.

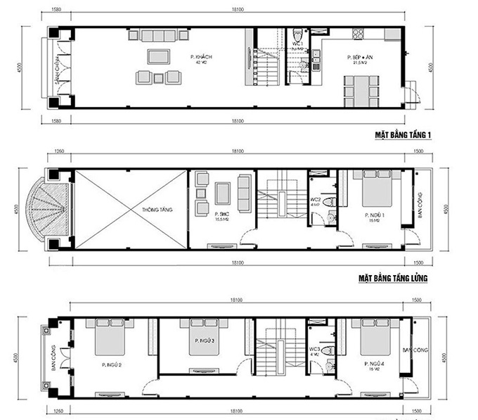
Thiết kế xây nhà trọn gói TPHCM gồm những gì?
Thiết kế xây nhà trọn gói sẽ bao gồm những tài liệu quan trọng sau:
- Bộ hồ sơ xin phép xây dựng: gồm các tài liệu và biểu mẫu liên quan đến việc xin cấp phép xây dựng từ các cơ quan chức năng.
- Bộ hồ sơ thiết kế kiến trúc: đây là tài liệu mô tả chi tiết về bản vẽ kiến trúc, bao gồm mặt tiền và các góc nhìn bên ngoài của ngôi nhà.
- Bộ hồ sơ kết cấu thi công: gồm các tài liệu liên quan đến cấu trúc của ngôi nhà như móng, dầm, sàn, cột,…
- Bản vẽ thiết kế 3d: bao gồm các bản vẽ kỹ thuật trong ngôi nhà cùng với hình ảnh phối cảnh 3d mặt tiền. Đây là tài liệu thể hiện các không gian nội, ngoại thất của ngôi nhà qua hình ảnh phối cảnh 3d.


Thời gian xây nhà trọn gói tại TPHCM bao lâu?
Thời gian thi công khi xây nhà trọn gói có thể biến đổi tùy thuộc vào nhiều yếu tố khác nhau, bao gồm kích thước của căn nhà, phức tạp của thiết kế, điều kiện địa hình, thời tiết (như mùa mưa) có thể làm gia tăng thời gian thi công. Tuy nhiên, dưới đây là một ước tính thời gian thi công thông thường cho các loại căn nhà khác nhau:
- Chuẩn bị mặt bằng và thi công móng nhà thời gian thi công 10 ngày. Bao gồm các công việc định vị, lấy tim mốc, đo đạc diện tích, thi công đào móng, hố GAS, đài móng, đục đầu cột và hoàn thiện móng.
- Thời gian xây dựng phần khung nhà là 8 ngày /1 sàn. Bao gồm các việc như thi công sắt cột, đóng cốt pha cột, xây tường và đổ bê tông cột.
- Thời gian thi công phần thô sẽ dao động từ 15 – 21 ngày cho từng loại diện tích xây dựng.
- Thời gian hoàn thiện từ 45 – 55 ngày bao gồm thi công đường điện, đường nước, đóng lưới chống nứt, tô trát toàn bộ tường bên trong và ngoài ngôi nhà, lắp đặt hệ thống cửa, trét MATIT, sơn nội ngoại thất toàn bộ ngôi nhà, chống thấm, cán nền, ốp lát gạch, lắp đặt thiết bị vệ sinh, thiết bị nhà bếp và các thiết bị trang trí,… theo hợp đồng xây dựng.
Cụ thể thời gian xây nhà trọn gói như sau
-
- Đối với công trình nhà phố hay biệt thự, nhà vườn, nhà cấp 4 có diện tích sàn xây dựng từ 200m2 – 250m2 thời gian thi công sẽ từ 2 đến 3.5 tháng thi công.
- Đối với công trình có diện tích từ 300m2 – 500m2 sàn xây dựng thời gian thi công từ 3.5 tháng – 5 tháng thi công.
- Công trình sửa chữa và nâng cấp: thời gian thi công cho việc sửa chữa hoặc nâng cấp căn nhà hiện có thường ngắn hơn so với xây dựng mới. Thông thường thời gian sửa chữa cải tạo sẽ từ 1 tháng đến 2.5 tháng thi công.


Quy trình xây nhà trọn gói TPHCM – Xây Dựng TLT
Khi xây nhà chúng ta cần có một quy trình chi tiết và kỹ thuật để đảm bảo ngôi nhà xây dựng được diễn ra một cách suôn sẻ và đạt được chất lượng tốt nhất. Dưới đây là các bước căn bản về quy trình xây nhà trọn gói tại TPHCM.
- Bước 1: Tư vấn và thiết kế xây dựng: Trong bước này, quý vị sẽ thảo luận với kiến trúc sư hoặc công ty xây nhà trọn gói để phân tích và đưa ra những phương án tốt nhất cho ngôi nhà của quý vị. Sau đó, KTS sẽ thiết kế một bản vẽ kỹ thuật chi tiết của ngôi nhà dựa trên các yêu cầu thực tế.
- Bước 2: Tính toán báo giá xây dựng: Sau khi có được thông tin chính xác về công năng cũng như diện tích xây dựng, kiến trúc, mức độ hoàn thiện và nhu cầu kinh phí. Kỹ sư xây dựng sẽ lên một bảng báo giá xây dựng trọn gói bóc tách từng hạng mục của ngôi nhà và cung cấp cho khách hàng tùy chỉnh theo cho phù hợp.
- Bước 3: Ký hợp đồng: Sau khi thống nhất được tất cả các phương án xây dựng cũng như chi phí xây dựng, hai bên tiến hành ký kết hợp đồng xây nhà trọn gói. Trong hợp đồng xây dựng sẽ được thể hiện đầy đủ từng hạng mục công việc, thời gian hoàn thành, vật liệu vật tư, thiết bị sử dụng và những phụ lục đi kèm nhằm đảm bảo quyền lợi cho hai bên.
- Bước 4: Xin giấy phép xây dựng và bản thiết kế: Khi ký hợp đồng công ty xây dựng sẽ thay mặt chủ đầu tư làm các thủ tục pháp lý như. Xin GPXD, bản vẽ thiết kế và các giấy tờ trước khi thi công xây dựng nhà.
- Bước 5: Chuẩn bị công trình: Sau khi đã có đầy đủ giấy tờ, công ty xây dựng sẽ chuẩn bị dọn dẹp mặt bằng, đo đạc diện tích đất xây dựng định vị tim mốc, cho công trình và san lấp mặt bằng, đào móng, lắp dựng khung cột.
- Bước 6: Xây dựng nền móng: Bước này là quan trọng nhất trong quá trình xây nhà trọn gói. Công ty xây dựng sẽ xây dựng nền móng theo bản vẽ thiết kế kết cấu để đảm bảo ngôi nhà của quý vị đủ trọng tải không bị sụt lún hay chênh lệch trong tương lai.
- Bước 7: Xây dựng khung cột, tường và đổ mái: Sau khi đã hoàn thành nền móng, công ty sẽ tiến hành xây dựng khung cột, tường, sàn và đổ mái.
- Bước 8: Hoàn thiện ngôi nhà: Khi tường, khung cột, mái đã được hoàn thiện, sẽ tiếp tục công việc lát sàn, lắp đặt hệ thống cửa, phòng tắm, phòng ngủ, lắp đặt nội thất, trang thiết bị hoàn thiện và các công việc khác theo hợp đồng.
- Bước 9: Kiểm tra và bàn giao: Sau khi hoàn thiện ngôi nhà, công ty xây dựng sẽ kiểm tra lại từng chi tiết trong căn nhà trước khi bàn giao cho chủ đầu tư.

Mẹo chọn nhà thầu xây nhà trọn gói tại TPHCM chất lượng
Để đảm bảo căn nhà được thi công đúng cách và đạt chất lượng, việc chọn nhà thầu xây nhà trọn gói tại TPHCM là điều vô cùng quan trọng. Vì vậy, xây dựng TLT sẽ đưa ra một số bí quyết để quý khách có thể chọn được đơn vị xây nhà trọn gói tại Thành phố Hồ Chí Minh phù hợp:
- Xác minh năng lực thực hiện và độ tin cậy của đơn vị xây dựng: Một trong những yếu tố quan trọng nhất khi chọn nhà thầu xây nhà trọn gói tại TPHCM là bề dày kinh nghiệm và độ uy tín của công ty.
- Quy trình làm việc: Một nhà thầu xây dựng nhà có kinh nghiệm sẽ đưa ra một quy trình làm việc hợp lý cũng như tư vấn báo giá chi tiết và đưa ra những giải pháp xây dựng phù hợp.
- Tham khảo phản hồi từ các công trình đã thi công: Xem xét các dự án thực tế mà đơn vị từng thực hiện là cách hiệu quả để đánh giá mức độ chuyên môn và chất lượng thi công.
- Xác minh tính pháp lý của đơn vị thi công: Đảm bảo doanh nghiệp có đầy đủ hồ sơ pháp lý, địa chỉ văn phòng rõ ràng, mã số thuế và giấy phép hoạt động,… Điều này giúp đảm bảo công ty đang hoạt động hợp pháp và có đủ chuyên môn để thực hiện xây dựng ngôi nhà của quý khách.
- Hợp đồng xây nhà trọn gói cần cụ thể, rõ ràng từng điều khoản: Hợp đồng cần được soạn thảo chi tiết, minh bạch, nêu rõ các điều khoản về tiến độ, chi phí, trách nhiệm và tiêu chuẩn chất lượng công trình.
- Xác định rõ nội dung công việc và các dịch vụ đi kèm: Nhà thầu cần cung cấp danh mục công việc đầy đủ, phân chia rõ ràng từng hạng mục và hỗ trợ các dịch vụ phát sinh trong quá trình thi công.
- Ràng buộc tiến độ xây dựng và thời điểm bàn giao trong hợp đồng: Thống nhất rõ ràng về mốc thời gian hoàn thành công trình theo kế hoạch, tránh kéo dài ảnh hưởng đến tiến độ chung.
- Chính sách bảo hành và bảo trì sau thi công: Lựa chọn đơn vị có cam kết bảo hành rõ ràng, thực hiện bảo trì đúng thời hạn, đảm bảo quyền lợi và sự an tâm cho chủ đầu tư sau khi bàn giao.

Công ty xây dựng TLT – Đơn vị xây nhà trọn gói tại TPHCM uy tín và chuyên nghiệp
Giới thiệu về năng lực và kinh nghiệm của công ty xây dựng TLT cho dịch vụ xây dựng
Công ty xây dựng TLT tự hào là một trong những đơn vị xây dựng uy tín tại TP.HCM chuyên cung cấp dịch vụ xây nhà trọn gói với trên 10 năm kinh nghiệm thực tế trên thị trường. Với đội ngũ kỹ sư, kiến trúc sư và thợ thi công tay nghề cao, TLT luôn đảm bảo tiến độ, chất lượng và sự hài lòng của khách hàng.
Mỗi năm chúng tôi đã hoàn thiện hàng trăm công trình nhà ở dân dụng từ nhà phố, biệt thự đến các công trình quy mô lớn, đa dạng phong cách thiết kế phù hợp với từng yêu cầu riêng biệt. Ngoài ra, TLT luôn ứng dụng công nghệ và vật liệu xây dựng tiên tiến nhằm tối ưu chi phí và nâng cao chất lượng công trình.
Ưu đãi của công ty xây dựng TLT cho dịch vụ xây nhà trọn gói TPHCM trong năm 2025 và 2026
Nhằm tri ân khách hàng và hỗ trợ tối đa trong kế hoạch xây dựng nhà cửa, TLT mang đến các ưu đãi hấp dẫn khi xây nhà năm 2026, bao gồm:
- Miễn phí thiết kế kiến trúc và bản vẽ thi công khi khách hàng lựa chọn dịch vụ xây nhà trọn gói trọn gói.
- Tặng gói bảo dưỡng công trình trong 12 tháng đầu với kiểm tra định kỳ và hỗ trợ xử lý sự cố nhanh chóng.
- Hỗ trợ tư vấn pháp lý, hoàn thiện thủ tục xây dựng miễn phí cho khách hàng tại khu vực TP.HCM.
- Ưu đãi linh hoạt cho khách hàng có dự án xây dựng liên tiếp hoặc giới thiệu khách hàng mới.
- Tri ân khách hàng trên tổng giá trị hợp đồng khi ký hợp đồng xây nhà trọn gói tại tphcm cùng TLT.

Cam kết về dịch vụ xây nhà trọn gói của TLT
Khi quý khách xây nhà tại thành phố Hồ Chí Minh cùng công ty TLT, quý khách hàng hoàn toàn yên tâm bởi các cam kết sau:
- Chất lượng thi công đạt chuẩn: tuân thủ nghiêm ngặt các quy trình kỹ thuật, sử dụng vật liệu chính hãng, đảm bảo công trình bền vững theo thời gian.
- Bảo đảm tiến độ thi công đúng hẹn: lập kế hoạch chi tiết, giám sát chặt chẽ từng giai đoạn để không xảy ra tình trạng chậm trễ.
- Minh bạch chi phí và báo giá rõ ràng: không phát sinh chi phí ngoài hợp đồng trừ khi có sự thay đổi yêu cầu từ khách hàng.
- Chủ động phối hợp và thông tin thường xuyên với khách hàng trong suốt quá trình thi công.
- Tư vấn giải pháp thiết kế, thi công tối ưu nhằm giúp khách hàng tiết kiệm chi phí, thời gian và công sức.
Chính sách bảo hành và hỗ trợ khi xây nhà trọn gói cùng TLT
Công ty xây dựng TLT cam kết bảo hành toàn diện cho công trình sau khi bàn giao với các chính sách cụ thể:
- Bảo hành phần kết cấu chính trong 5 năm để đảm bảo sự an toàn và ổn định cho ngôi nhà.
- Bảo hành phần hoàn thiện (sơn, thiết bị, cửa, lát nền, điện nước…) trong 12 tháng kể từ ngày bàn giao.
- Hỗ trợ khách hàng xử lý nhanh chóng các sự cố phát sinh trong quá trình sử dụng.
- Tư vấn kỹ thuật miễn phí trọn đời công trình.
- Dịch vụ chăm sóc khách hàng tận tâm sau khi bàn giao nhà.
Thông tin liên hệ công ty xây dựng TLT – Hỗ trợ tư vấn dịch vụ thiết kế và xây nhà tại TP.HCM
Nếu quý khách hàng có nhu cầu tư vấn, báo giá hoặc cần hỗ trợ thiết kế, thi công xây nhà trọn gói tại TP.HCM, vui lòng liên hệ với công ty xây dựng TLT qua hotline: 0917341516.
Chúng tôi luôn sẵn sàng đồng hành cùng quý khách hàng để kiến tạo ngôi nhà với chất lượng tốt và chi phí hợp lý.

Giải đáp thêm về quy định và thủ tục cần thiết khi xây nhà trọn gói TPHCM
Dưới đây là bảng tổng hợp giải đáp thêm về quy định và thủ tục cần thiết khi xây nhà tại TP.HCM cùng các câu hỏi thường gặp khi từ những khách hàng.
- Tôi cần phải chuẩn bị những gì trước khi xây nhà tại TPHCM?
- Trước khi xây nhà trọn gói, quý vị cần phải chuẩn bị các giấy tờ liên quan đến quy hoạch xây dựng và giấy phép xây dựng. Ngoài ra, quý vị cần có một kế hoạch tính toán cho tổng chi phí để đảm bảo không vượt quá chi phí của mình.
- Xây nhà trọn gói là gì? Có khác gì tự xây từng phần?
- Nếu xây nhà trọn gói là nhà thầu đảm nhận mọi công việc mang lại công trình chất lượng thì xây nhà truyền thống chủ đầu tư sẽ phải tự thuê từng đội thợ, tự mua vật liệu, giám sát đến các thủ tục liên quan. Điều này sẽ gây khó khắn với những ai không có nhiều thời gian và không có kinh nghiệm về lịch vực xây dựng.
- Chi phí xây nhà trọn gói tại TPHCM hiện nay khoảng bao nhiêu một mét vuông?
- Tùy vào mức độ đầu tư vật liệu và quy mô công trình, giá xây nhà trọn gói TPHCM dao động từ 4.2 Triệu đến 6,5 Triệu Đồng/m² đối với nhà ở phổ thông. Với các yêu cầu cao cấp hơn (nội thất nhập khẩu, thiết kế đặc biệt…), mức giá có thể từ 7 Triệu/m² trở lên. Để có báo giá chính xác cần dựa trên bản vẽ cụ thể và điều kiện thực tế thi công.
- Làm sao để tính toán giá xây dựng theo m2?
- Quý vị chỉ cần liên hệ với chúng tôi theo hotline: 0976272186 để được cung cấp miễn phí báo giá xây nhà trọn gói hoặc điền thông tin vào phần mềm tiện ích của chúng tôi quý khách sẽ được hiển thị kết quả ngay lập tức
- Các yếu tố quan trọng cần lưu ý trong thiết kế thi công xây nhà trọn gói là gì?
- Các yếu tố quan trọng cần lưu ý trong thiết kế thi công nhà trọn gói bao gồm: diện tích của công trình, kiểu dáng của ngôi nhà, vật liệu xây dựng, trang thiết bị, phong thủy và phương pháp xây dựng nhà.
- Thời gian thi công xây dựng nhà tại TPHCM mất bao lâu?
- Thời gian trung bình để hoàn thành một ngôi nhà phố 1 trệt 1 lầu từ 250 -300m2 là khoảng 3–4 tháng. Với những công trình lớn hơn như nhà 3–5 tầng, biệt thự hoặc có tầng hầm, thời gian có thể kéo dài 5–7 tháng theo từng diện tích, chưa kể thời gian chuẩn bị hồ sơ, xin phép xây dựng. Nếu thi công trong mùa mưa hoặc khu vực hạn chế vận chuyển, tiến độ có thể chậm hơn.
- Dịch vụ xây nhà trọn gói có phát sinh thêm chi phí không?
- Thông thường, nếu bản vẽ thiết kế và danh mục vật liệu đã thống nhất từ đầu, thì gần như không phát sinh thêm chi phí. Tuy nhiên, nếu trong quá trình thi công, chủ nhà muốn thay đổi vật liệu, tăng diện tích, hoặc phát sinh điều kiện thi công đặc biệt (ví dụ địa chất yếu, phải gia cố móng…), nhà thầu sẽ báo và lập hợp đồng phát sinh. Để tránh rủi ro, nên ký hợp đồng rõ ràng, có cam kết kiểm soát phát sinh.
- Ai sẽ chịu trách nhiệm làm giấy phép xây dựng và các thủ tục pháp lý?
- Tại thành phố Hồ Chí Minh hầu hết các nhà thầu xây nhà trọn gói hiện nay đều có dịch vụ hỗ trợ xin giấy phép xây dựng, lập hồ sơ thiết kế kỹ thuật, hồ sơ xin cấp điện nước,… chủ đầu tư chỉ cần cung cấp giấy tờ cá nhân, giấy tờ nhà đất, phần còn lại nhà thầu sẽ thực hiện theo quy trình.
- Tôi có được chọn vật liệu, thiết bị và màu sắc theo ý mình không?
- Có. Nhà thầu sẽ đưa ra mức giá với danh sách các loại vật liệu theo từng gói theo (trung bình, khá, cao cấp) để chủ đầu tư lựa chọn. Ngoài ra, quý khách có thể yêu cầu thay đổi mẫu mã, màu sắc, chủng loại thiết bị miễn sao phù hợp với mức giá và thời gian thi công. Tuy nhiên mọi thay đổi đều cần thống nhất bằng văn bản hoặc phụ lục hợp đồng để tránh nhầm lẫn.
- Công trình sau khi bàn giao có được bảo hành không?
- Đối với các công ty xây dựng uy tín thì ngay trong bảng báo giá sẽ được thể hiện thời gian bảo hành cho từng phần. Phần kết cấu (móng, cột, dầm, sàn) sẽ được bảo hành từ 5 đến 10 năm, tùy theo hợp đồng. Phần hoàn thiện như sơn nước, thiết bị vệ sinh, hệ thống điện nước… thường có bảo hành từ 12 đến 24 tháng theo nhà sản xuất. Nên lưu ý yêu cầu ghi rõ các điều khoản bảo hành trong hợp đồng và giữ lại phiếu bảo hành của các thiết bị.
- Nếu sau này muốn nâng tầng thì cần chuẩn bị gì ngay từ đầu?
- nếu bạn có ý định nâng tầng trong tương lai, hãy trao đổi với kiến trúc sư và kỹ sư ngay từ giai đoạn thiết kế để phần móng và kết cấu hiện tại có thể chịu lực được cho tầng bổ sung. Nếu không tính trước, sau này nâng tầng sẽ rất tốn kém và có thể ảnh hưởng đến an toàn công trình.
- Những yếu tố nào ảnh hưởng nhiều đến chi phí xây dựng nhà tại TPHCM?
- Chi phí xây dựng phụ thuộc vào nhiều yếu tố như:
- Diện tích và quy mô công trình.
- Độ khó của thiết kế (nhiều chi tiết phức tạp sẽ tăng chi phí).
- Chủng loại vật liệu hoàn thiện.
- Vị trí thi công (hẻm nhỏ, vận chuyển khó khăn làm tăng chi phí).
- Thời điểm xây dựng (giá vật tư biến động theo mùa và thị trường).
- Yêu cầu đặc biệt như thang máy, kính cường lực, sân vườn, chống thấm cao cấp…
- Hợp đồng xây nhà trọn gói cần lưu ý gì để đảm bảo quyền lợi?
- Trước khi ký hợp đồng, quý khách nên kiểm tra kỹ các nội dung sau:
- Danh mục công việc chi tiết từ A đến Z.
- Chủng loại và thương hiệu vật liệu cụ thể.
- Mốc thanh toán theo tiến độ rõ ràng.
- Cam kết tiến độ và xử lý nếu chậm trễ.
- Điều khoản bảo hành.
- Mức phạt khi vi phạm hợp đồng.
- Các hạng mục không bao gồm để tránh hiểu lầm.
Ngoài ra, nên yêu cầu có bản thiết kế chi tiết và bảng tiến độ thi công để dễ dàng giám sát.

Quý khách tham khảo thêm một số dự án xây dựng tiêu biểu tại công ty Xây Dựng TLT thi công


















Liên Hệ: Công Ty Xây Dựng TLT.
Điện Thoại: 0976272186 | Zalo: 0917341516.
Email: kientrucxaydungtlt8688@gmail.com
Website: https://xaydungtlt.com/
Văn Phòng 1: Số 51 Đường Số 3, Khu Đô Thị Vạn Phúc, QL13, P. Hiệp Bình, TP.HCM.
CN1: 200/78/19 Bưng Ông Thoàn – P. Phú Hữu – Tp. Thủ Đức – TPHCM.
CN2: 68 – Hẻm 1 – Tổ 3B – KP Hương Phước – P. Phước Tân – TP Biên Hòa – Đồng Nai.
CN3: Đường Dk4A – Kp3A – P. Thới Hoà – TP. Bến Cát – Bình Dương.
Xưởng cơ khí – Nội Thất: 261A Bưng Ông Thoàn, Phường Tăng Nhơn Phú, TPHCM.
Nguồn bài viết tại: https://xaydungtlt.com.
Bình luận gần đây (10 bình luận)
Bình luận
BÀI VIẾT LIÊN QUAN
Đơn giá xây căn hộ dịch vụ tại TPHCM và các tỉnh năm 2025 + 2026
Năm 2025 đánh dấu giai đoạn phục hồi mạnh mẽ của thị trường nhà ở cho thuê, đặc biệt là...
Xem chi tiếtChi phí xây nhà 2 tầng tại Tp.Hcm [Cập Nhật 2025] – Bảng giá chi tiết & Lưu ý quan trọng
Trong những năm gần đây, nhu cầu xây dựng nhà 2 tầng tại TP.HCM ngày càng tăng cao. Với tốc...
Xem chi tiếtGiá xây nhà trọn gói tại Quận 10 năm 2025 – Xây Dựng TLT
Dịch vụ xây nhà trọn gói là gì? Có nên chọn hình thức xây nhà trọn gói không? Giá xây...
Xem chi tiếtDịch vụ xây dựng nhà tại Củ Chi – Miễn phí bản vẽ thiết kế
Xây nhà trọn gói Củ Chi. Khi quý khách đang chuẩn bị lên kế hoạch xây dựng ngôi nhà tại...
Xem chi tiếtDự toán chi phí xây nhà tại Thái Mỹ: Tất tần tật những điều cần biết
Dịch vụ xây nhà trọn gói tại Thái Mỹ là một trong những dịch vụ phổ biến được nhiều gia...
Xem chi tiếtXây nhà trọn gói gồm những gì? Bao nhiêu tiền một mét vuông
Giá xây nhà trọn gói bao nhiêu 1m2 (mét vuông) có thể thay đổi tùy thuộc vào nhiều yếu tố...
Xem chi tiếtTư vấn báo giá xây nhà 2026 – Bóc tách không phát sinh
Quyết định xây dựng nhà ở là một cột mốc lớn, đánh dấu sự khởi đầu của một không gian...
Xem chi tiếtTư vấn xây nhà trọn gói tại Kiên Giang – Xây Dựng TLT
Tại sao dịch vụ xây nhà tại Kiên Giang của xây dựng TLT lại được ưa chuộng? Trong bối cảnh...
Xem chi tiếtCông ty xây nhà trọn gói tại Hậu Giang – Xây dựng TLT
Bài viết này công ty xây dựng TLT sẽ cung cấp những thông tin chi tiết về dịch vụ xây...
Xem chi tiết


Giá xây nhà trọn gói tại TpHCM bao nhiêu 1m2 vậy công ty. tôi cần tư vấn xây nhà phố
Dạ Xây Dựng TLT xin chào quý Anh/Chị, Nhân viên bên em sẽ liên hệ đến quý Anh/Chị để tư vấn chi phí xây nhà chi tiết theo công năng và diện tích xây dựng của mình ngay ạ.
tư vấn giá xây hoàn thiện nhà phố giúp mình nhé
Dạ TLT xin chào quý khách, nhân viên TLT sẽ liên hệ tư vấn đến quý khách ạ, cảm ơn quý khách đã quan tâm đến dịch vụ xây dựng nhà của TLT
Chi phí xây nhà phố 1 trệt 4 lầu diện tích 5*20 xây dạng chdv có sân thượng và hầm bao nhiêu vậy công ty
Dạ TLT xin chào quý khách, nhân viên TLT sẽ liên hệ tư vấn đến quý khách ạ, cảm ơn quý khách đã quan tâm đến dịch vụ xây dựng nhà của TLT
Chi phí xây nhà ngang 5 dài 15 mái thái 3 tầng bao nhiêu vậy, trọn gói chìa khóa trao tay tư vấn cho tôi. Xây ở Bình Tân, HCM
Dạ TLT xin chào quý khách, nhân viên TLT sẽ liên hệ tư vấn đến quý khách ạ, cảm ơn quý khách đã quan tâm đến dịch vụ xây dựng của TLT
Tôi muốn xây nhà phố 1 lửng 2 lầu có sân thượng dt4*14 tại thủ đức chi phí như nào bạn
Dạ TLT xin chào quý khách, nhân viên TLT sẽ liên hệ tư vấn đến quý khách ạ, cảm ơn quý khách đã quan tâm đến dịch vụ xây dựng của TLT